Construcción
- Frente del terreno10 m²
- Fondo del terreno42 m²
- Frentes del terreno2
- Bodegas0
- Ubicación de piso0
- Tipo de remodelaciónBásica
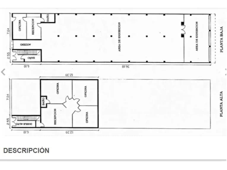
Local comercial céntrico, con oficinas en planta alta. Cuenta con 405 m2 de terreno (con doble frente), y 557.77 m2 de construcción.
- Terreno regular (frente 9.59 m x 42.25 de fondo)
- Doble frente por Callejón Guadalupe Victoria.
- Construido en 2 plantas.
Planta baja: Local, 3 cajones de estacionamiento, área de exhibición techada y área de exhibición cerrada, medio baño y 2 oficinas tipo privado, una de ellas con salida al callejón.
Planta alta: oficinas 152.52 m2. Acceso por callejón Guadalupe Victoria. Cuenta con recepción con escritorios y libreros de tablaroca, 3 oficinas con libreros empotrados y medio baño.
Piso cerámico y techo cielo raso, cortinas metálicas en fachada principal Av. Juárez
UBICACIÓN GOOGLE EARTH: https://earth.google.com/web/search/Los+Mochis,+Sinaloa/@25.79062514,-108.9936314,13.38210666a,236.25228336d,35y,-0h,0t,0r/data=CigiJgokCTrnyFDwpzNAETfnyFDwpzPAGf4qzNR9NklAIQErzNR9NknAOgMKATA
UBICACIÓN GOOGLE MAPS: https://maps.app.goo.gl/uVV3MVLJJZAjpRWz8
Note: Solicita cita con un Asesor
(DoRam)
